Americana: California
This exhibition looks no further than the very ground it stands on—a lot bounded by Eighth, Irwin, Hooper, and Seventh streets in San Francisco. Now part of California College of the Arts's San Francisco campus, this land is emblematic of the complex industrial heritage of Mission Bay, which in turn mirrors the technological exploitation of the larger Californian landscape.
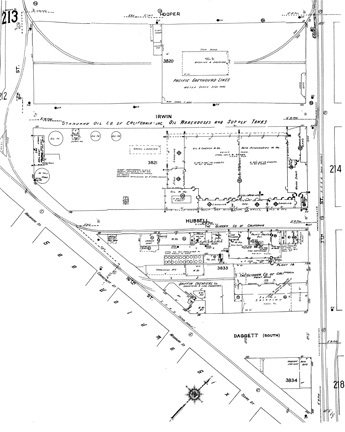
A construction project that has been under way since the 1850s, the shaping of these lands began as lines drawn in the water. As the name Mission Bay suggests, this area was part of a water system sold off to speculators anticipating the city's expansion. Originally one such "water lot," this site would undergo numerous transitions over the years before eventually becoming the art school we know today.
The architecture of the building betrays its former purpose as a mid-century Greyhound bus maintenance facility. Earlier land surveys from the turn of the twentieth century place at this site a conglomeration of small manufacturing enterprises—sheet metal, glass works, oil and paint, and asbestos supply. From submerged tidal lot to college campus, these shifts mark how we produce the landscape and how these alterations affect our perception of local geography.
Centering on the visual communication standard of the map, this exhibition measures local time against previous records to animate a consideration of the ground beneath our feet. The display consists of a variety of land surveys in the form of maps, aerial photographs, and explanatory texts.
For his assistance in preparing this research, I would like to thank Peter Linenthal of the Potrero Hill Archives Project.
Sarah Robayo Sheridan

